GREGORI WARCHAVCHIK
- ACR 113
- 13 de jan. de 2022
- 5 min de leitura

VIDA E CARREIRA
Gregori Ilych Warchavchik nasceu na cidade de Odessa na Ucrânia no dia 2 de Maio de 1896 e faleceu em São Paulo, Brasil em 27 de Julho de 1972 aos 76 anos. O início de sua carreira se dá logo após sua formatura pelo Instituto Real de Belas Artes de Roma no ano de 1920 e sua vinda para o Brasil, um país que não reconhecia a função de um arquiteto na época.

Figura 01: Gregori Warchavchik |Fonte: Enciclopedia Itaucultural, 2020.
Warchavchik se formou em 14 de Julho de 1920 no Regio Istituto Superiore Di Belle Arti de Roma, vindo a trabalhar por dois anos para o professor e arquiteto Marcello Piacentini (1881-1960) antes de se mudar para o Brasil em 1923.
CHEGADA AO BRASIL
Sua chegada ao Brasil se deu durante a Vanguarda Modernista que ocorreu um ano após a Semana de 22, o que lhe proporcionou uma maior aceitação em relação às ideias trazidas da Europa.

Figura 02: Gregori Warchavchik | Fonte: Itaucultural, 2020.
Apesar de o país ainda não reconhecer a função de um arquiteto, podendo esta ser exercida até mesmo por um mestre de obras no período, Warchavchik acaba chegando em um lugar extremamente oportuno, visto que São Paulo estava lotada de defensores da nova arte como Oswald de Andrade, Renato de Cavalcanti, Anita Malfatti, Plínio Salgado, entre outros nomes.
Em meio a este grupo modernista, ele acaba por conhecer Mina Klabin, com que se casara em 1927, conseguindo assim se naturalizar Brasileiro.

Figura 03: Gregori Warchavchik | Fonte: DriellyArquitetura, 2015.
Gregori Warchavchik ficou conhecido como Introdutor da arquitetura moderna no Brasil e em 1925 publica o texto Futurismo? no jornal II Piccolo, sendo o mesmo traduzido para o português no jornal Correio da Manhã como Acerca da Arquitetura Brasileira.
De acordo com Enciclopédia Itaucultural, 2020, “o caráter histórico da noção de beleza, a incompatibilidade entre racionalidade construtiva dos engenheiros e a ornamentação postiça dos arquitetos e as novas imposições da vida moderna gerariam um ‘estilo do nosso tempo’: a arquitetura moderna.

Figura 04: Gregori Warchavchik | Fonte: Wikipedia, 2021.
Obras de WARCHAVCHIK
Ao longo de sua vida e jornada como arquiteto, Warchavchik projetou inúmeras residências e edifícios, porém houve uma diminuição considerável de projetos a partir da década de 1940.
Seu último projeto registrado foi executado 22 anos antes de seu falecimento.
→ Casa da Rua Santa Cruz - 1927.
→ Casa da Rua Itápolis - 1929.
→ Casas Econômicas em Série, Rua Barão de Jaguara - 1929.
→ Residência para um casal - 1929.
→ Residência para o Sr Cândido da Silva - 1929.
→ Fachada da Casa da Rua Bahia - 1930.
→ Interior da Casa da Rua Bahia - 1930.
→ Residência Luís da Silva Prado - 1930.
→ Blocos de Casas Econômicas para classe média, Rua Afonso Celso e D. Berta - 1930.
→ Sala de Estar da Casa da Rua Itápolis - 1930.
→ Residência de Antônio da Silva Prado Neto - 1931.
→ Imóvel de Rendimento para o Sr. Lincoln Nodari - 1931.
→ Residência para o Sr. Guimarães da Fonseca - 1931.
→ Apartamento Moderno da Avenida Atlântica - 1932.
→ Residência para o Sr. F. Rolim Gonçalves - 1932.
→ Casa para aluguel da Sra. D. Mário Gallo - 1932.
→ Residência para o Sr. Alfredo Schwartz - 1932.
→ Vila Operária da Gamboa - 1933 (Em conjunto com Lúcio Costa).
→ Capela do Morumbi - 1940.
→ Sede Social do Club Athletico Paulistano - 1950.
→ Edifício de Apartamentos Cícero Prado - 1954.
Obras Analisadas
CASA MODERNISTA

Figura 05: Casa Modernista | Fonte: Arkhé6 Blogspot, 2011.
Nome: Casa Modernista da Rua Santa Cruz.
Endereço: R. Santa Cruz, Nº 325, Vila Mariana, São Paulo, SP.
Data da Construção: 1927.
Área: 13.000 m2.
Projeto de Arquitetura: Gregori Warchavchik
Tombada em 1980 como Patrimônio Histórico pelo Conselho da Defesa do Patrimônio Histórico, Arqueológico, Artístico e Turístico.
A casa Modernista foi construída em 1927, com o propósito de abrigar o Arquiteto e sua esposa Mina Klabin, mantendo sempre a ideia de um edifício funcional e leve. Cada item e espaço da casa foi pensado por Gregori visando a racionalidade e a funcionalidade.
Figuras 06 e 07: Planta Casa Modernista | Fonte: Arkhé6 Blogspot, 2011.
Em 1934 a casa passa pela primeira reforma, tendo sua sala ampliada em direção à varanda e em seu pavimento superior tendo o quarto principal também ampliado, para proporcionar a acomodação de um novo banheiro e criação de um terraço em volta dos quartos.

Figura 08: Paisagismo Casa Modernista | Fonte: Arkhé6 Blogspot, 2011.
Mina Klabin, elabora a parte paisagística do projeto, tendo em mente como o espaço externo seria visto da parte interna da casa, utilizando como base as próprias esquadrias do edifício para compor uma obra de arte.
É possível perceber as diferenças do paisagismo empregado por Klabin na época, o qual se dava bastante pela utilização de plantas de origem desértica como os cactos e suculentas, e o que encontramos atualmente.

Figura 09: Paisagismo antigo Casa Modernista | Fonte: Archdaily, 2013.
É possível analisar em sua moradia presença de enormes janelas em sua lateral e parte traseira, o que proporciona uma maior iluminação no ambiente além de uma ótima visibilidade de seu entorno. A casa também possui uma extensa área social, além de uma pintura que proporciona destaque a obra, com variações de amarelo e marrom, mesclados ao branco do exterior e as árvores.

Figura 10: Modelo 3D Casa Modernista | Fonte: 3D Warehouse, 2016.
Figura 11, 12, 13 e 14: Interior, exterior e plantas internas Casa Modernista | Fonte: Verdesp, 2020. Prefeitura de São Paulo, 2021. Acervo da Faculdade de Arquitetura da USP.
CASA DA RUA ITÁPOLIS

Figura 15: Casa Moderna da Rua Itápolis | Fonte: Coisasdaarquitetura, 2010.
Nome: Casa Moderna da Rua Itápolis
Endereço: R. Itápolis, Nº 961, Pacaembu, São Paulo, SP.
Data da Construção: 1930.
Projeto de Arquitetura: Gregori Warchavchik
Tombada como patrimônio histórico em 1986 pelo Conselho da Defesa do Patrimônio Histórico, Arqueológico, Artístico e Turístico.
Foi reconhecida e representa a chegada da filosofia da Semana de Arte Moderna de 1922 para a Arquitetura do Brasil.
O edifício possui uma base quadrada e produz um volume Prismático, contando com dois pavimentos. Seus pavimentos não possuem alturas simétricas, o que chama atenção de pessoas que passam pelo local. A obra é composta por muros de arrimo o que proporciona uma ideia de imponência.

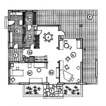
Figura 16: Planta Casa da Rua Itápolis | Fonte: Driellyarquitetura, 2015.
O edifício é considerado um “trabalho sobre linhas, planos e volumes” e sua assimetria é dada por 4 elementos: os planos que protegem a varanda frontal, os que protegem a entrada lateral, as linhas que apoiam as pérgolas da varanda posterior e o volume da cozinha posterior. Estes planos existentes na obra permitem que o jardim não fique completamente exposto à rua.
No pavimento térreo da casa os dois quadrantes frontais são destinados à sala de estar, com cozinha, banheiro e escada localizados no quadrante posterior por onde se dá o principal acesso da casa.
No segundo pavimento da casa, os quadrantes frontais estão destinados aos quartos e os quadrantes posteriores à escada, banheiro superior e outro quarto.

Figura 17: Elevações Casa Rua Itápolis | Fonte: Driellyarquitetura, 2015.
As janelas do edifício também agregam a ele aspectos positivos, em uma mistura de janelas em L, janelas esquinadas e de tamanhos assimétricos.
A casa se encontra atualmente em ótimo estado de conservação, principalmente tendo em conta a desocupação da última inquilina que ocorreu em 2007 e a reforma feita em 2010 em comemoração ao aniversário de 80 anos do edifício.
Figuras 18 e 19: 3D e Exterior Casa da Rua Itápolis | Fonte: Driellyarquitetura, 2015. Archdaily, 2013.
ReFERÊNCIAS BIBLIOGRÁFICAS
Trabalho Realizado pela Aluna: Laís Anthonelle Anunciação.














Comentários