MACh Arquitetos
- ACR 113
- 23 de out. de 2023
- 12 min de leitura

Figura 1: Retrato dos arquitetos sócios fundadores Mariza Machado Coelho e Fernando Maculan
Fonte: Rosenbaum

Figura 2: Logotipo MACh Arquitetos
Fonte: MACh Arquitetos
APRESENTAÇÃO
O escritório MACh Arquitetos foi criado em 2006 e é composto pelos arquitetos Fernando Maculan, Mariza Machado Coelho, Luciana Czechmeister e Rafael Yanni. Seu campo de atuação é bastante amplo e abrange projetos residenciais, institucionais, esportivos e urbanos, além de intervenções no patrimônio cultural edificado, que, recentemente, é a área que reúne as mais numerosas realizações do escritório, entre expografia, cenografia, projetos museográficos, galerias, sedes de grupos e instituições culturais.
biografia dos arquitetos
Fernando Maculan formou-se pela Escola de Arquitetura da UFMG em 1997. Após sua graduação, trabalhou no escritório de arquitetura Hayano Gumi, de Tóquio, entre 2004 e 2005. Além disso, liderou o projeto Design Across Boundaries, em Londres. Cita-se também sua sociedade e fundação da Molmaculan Design, junto com Adriano Mol, em 2003. Seguindo sua biografia, Maculan tornou-se membro do Laboratório Piracema de Design, em 2006, e colaborador do Grupo Corpo Companhia de Dança, desde 2008. Em 2011, tornou-se arquiteto associado do BCMF Arquitetos. Maculan também é co-fundador e co-editor da MDC – Revista de Arquitetura e Urbanismo e curador do projeto Coarquitetura, do qual participaram seus alunos da Escola de Arquitetura da UFMG, isso, desde 2010. Por fim, também é um dos participantes do Coletivo Levante.

Figura 3: Fernando Maculan
Fonte: MACh Arquitetos
Mariza Machado Coelho formou-se na Universidade Federal de Minas Gerais e, posteriormente, fundou a A&M Arquitetura, em 1990, com o arquiteto Álvaro Hardy. Seus projetos em Belo Horizonte incluem intervenções urbanas como a revitalização de diversos espaços públicos. Dentre essas, citam-se as intervenções em prédios institucionais, como a Casa do Baile, na Pampulha (em colaboração com o arquiteto Oscar Niemeyer); em museus, como o Museu Histórico de Abílio Barreto; e em edifícios institucionais, como o Memorial do Migrante Japonês, na Pampulha. Além disso, Mariza Machado Coelho recebeu menção honrosa no 9º Prêmio IAB; 1º lugar no 8º Prêmio de Arquitetura IAB-MG; Medalha do Centenário de BH; 1º lugar no concurso nacional do projeto de reconstrução da Praça Rio Branco na Bósnia e Herzegovina e Certificado Honorário da Câmara Municipal de Belo Horizonte. Por fim, em 2006 colaborou com o arquiteto Fernando Maculan e ambos fundaram o escritório MACh Arquitetos.

Figura 4: Mariza Machado Coelho
Fonte: MACh Arquitetos
Luciana Czechmeister, em 1997, formou-se arquiteta e urbanista pela PUC-MG. Desde o primeiro ano de estudo, começou a atuar no desenvolvimento e supervisão de projetos na área de arquitetura residencial e comercial, trabalhando em conjunto com a arquiteta Freuza Zechmeister em diversas cidades brasileiras. Sua primeira experiência internacional ocorreu em 2000, quando trabalhou na empresa francesa de engenharia e arquitetura Betom Ingénierie, com sede em Paris, em projetos de escolas e prédios de apartamentos. Em 2019, ingressou no escritório MACh Arquitetos.
Rafael Yanni graduou-se na Escola de Arquitetura da UFMG, em 1997 e, lá, concluiu o mestrado (NPGAU) em 2020. Desde 2023, é professor de Arquitetura na Faculdade Pitágoras. Além disso, atuou por 6 anos no escritório técnico de arquitetura da UFMG e por 5 anos no Núcleo de Entregas e de Empreendedores Públicos do Escritório de Prioridades Estratégicas do Governo de Minas Gerais, desenvolvendo projetos de grandes equipamentos e atuando na gestão de contratos públicos. Rafael Yanni também colaborou com a arquiteta Jô Vasconcellos no projeto do Centro Cultural Itamar Franco, que abriga a sede da Orquestra Filarmônica de Minas Gerais, Rede Minas e Rádio Inconfidência. Por fim, ingressou no escritório MACh Arquitetos em janeiro de 2021.
Sobre o grupo
O escritório MACh Arquitetos pontua a diversidade como algo essencial, o que está presente tanto na prática profissional quanto na concepção de seus projetos. Além disso, a colaboração com outros escritórios e arquitetos faz parte do cotidiano do grupo, tendo parcerias relevantes com coletivos como: BCMF Arquitetos e Hardy Design. Sobre seus projetos, é possível identificar padrões como a exploração de cheios e vazios, a valorização dos tipos de iluminação e o respeito com o contexto em que suas obras estão inseridas. Por fim, também valorizam a multidisciplinaridade e a comunicação entre as pessoas como necessidade para alcançar bons resultados. Por isso, o escritório se envolve mais com o trabalho global em torno de um projeto.
lista de projetos
O escritório MACh Arquitetos possui um grande acervo de obras construídas no Brasil e no mundo, segue a lista de todos os projetos elencados por ordem cronológica:
2006
Exposição Soalheiro (Cultural) – Belo Horizonte, MG, Brasil
Café do museu e Arquivo (Intervenção em patrimônio histórico) – Belo Horizonte, MG, Brasil
2007
Neovanguardas (Cultural) – Belo Horizonte, MG, Brasil
Beco São Vicente (Urbano) - Belo Horizonte, MG, Brasil

Figura 5: Beco São Vicente
Fonte: Revista Projeto
2008
Memorial de imigração japonesa (Intervenção em patrimônio histórico) – Belo Horizonte, MG, Brasil
Morada Brasil (Residencial) – Belo Horizonte, MG, Brasil
2009
Restaurante Inhotim (Comercial) - Brumadinho, MG, Brasil
Apartamento BB (Residencial) - Belo Horizonte, MG, Brasil
2010
Dominó Canibal (Cultural) – Murcia, Espanha
At a certain distance (Cultural) – Malmo, Suécia
Corpo 35 anos (Cultural) – Belo Horizonte, MG, Brasil
Escada 104 (Intervenção em patrimônio histórico) – Belo Horizonte, MG, Brasil
Museu Clube da esquina (Intervenção em patrimônio histórico) – Belo Horizonte, MG, Brasil
CTU (Concurso) – Rio de Janeiro, RJ, Brasil
FIT (Temporário) – Belo Horizonte, MG, Brasil
2011
Uakti (Cultural) – Belo Horizonte, MG, Brasil
Eustáquio Neves (Cultural) – Belo Horizonte, MG, Brasil
Cozinha Escola (Comercial) - Belo Horizonte, MG, Brasil
Edifícios do PCTI (Centro de pesquisa) – Itajubá, MG, Brasil Casa Galeria (Residenciais) – Nova Lima, MG, Brasil
Mercado Central (Concurso) - Belo Horizonte, MG, Brasil
2012
Grupo Galpão (Cultural) – Belo Horizonte, MG, Brasil
Criativa Birô (Cultural) – Belo Horizonte, MG, Brasil
Noite Branca no Parque (Temporário) - Belo Horizonte, MG, Brasil
2013
Cena (Intervenção em patrimônio histórico) – Belo Horizonte, MG, Brasil
Inhotim Escola (Temporário) – Belo Horizonte, MG, Brasil
Galeria Nióbio (Cultural) – Belo Horizonte, MG, Brasil
Praça Bonomi (Comercial) – Belo Horizonte, MG, Brasil
Empório Nanak (Comercial) - Belo Horizonte, MG, Brasil
Estação Antártica (Concurso) – Ilha do Rei George, Antártida

Figura 6: Estação Antártica
Fonte: MACh Arquitetos
2014
Bar, Piscina, Galeria (Comercial) - Brumadinho, MG, Brasil
Exposição do objeto ao mundo (Cultural) – Belo Horizonte, MG, Brasil
Mirante Carajás (Comercial) - Carajás, PA, Brasil
Edifício Alto Buritis (Residencial) - Belo Horizonte, MG, Brasil
Pavilhão do Brasil na Expo Milão 2015 (Concurso) – Milão, Itália
Café do Museu Mineiro e Arquivo Público Mineiro (Concurso) – Belo Horizonte, MG, Brasil

Figura 7: Café do Museu Mineiro e Arquivo Público Mineiro
Fonte: Archdaily
2015
Circuito Silva Lobo (Urbano) - Belo Horizonte, MG, Brasil
Lançamento Jeep Renegade (Temporário) – Rio de Janeiro, RJ, Brasil
2016
Galeria Yayoi Kusama (Cultural) – Brumadinho, MG, Brasil
Centro de Engenharia Google (Comercial) - Belo Horizonte, MG, Brasil
2018
Letras – Sede Corporativa (Comercial) – Belo Horizonte, MG, Brasil
Casa das Minas (Residencial) - Ouro Preto, MG, Brasil
Espaço de Eventos Google São Paulo (Comercial) – Belo Horizonte, MG, Brasil

Figura 8: Espaço de eventos Google, em parceria com a BCMF
Fonte: Revista Projeto
2022
Córrego do Feijão: Projeto Território-Parque (Urbano) – Brumadinho, MG, Brasil

Figura 9: Projeto Território-Parque
Fonte: Revista Projeto
Dentre as obras citadas acima, iremos analisar de maneira detalhada a Cozinha Escola, instalada no Mercado Central de Belo Horizonte, e a Casa das Minas, construída em Ouro Preto.
cozinha escola

Figura 10: Cozinha Escola
Fonte: MACh Arquitetos
Ficha técnica:
Cliente: Cozinha Escola Nestlé (Escola de Gastronomia)
Local: Belo Horizonte, MG
Data de início do projeto: 2010
Data de conclusão da obra: 2011
Tipologia de uso: Educação e cultura
Padrão arquitetônico: Arquitetura contemporânea
Diferenciais técnicos: Design / Sustentabilidade
Área de intervenção: 281m²
Arquitetura: MACh Arquitetos e Rosenbaum – Fernando Maculan, Mariza Machado Coelho e Marcelo Rosenbaum (autores)
Equipe: Adriana Benguela e Alceu Brito (arquitetos associados); Ana Paula Harumi, Ana Galli, Guilherme Peluci e Daila Araújo (colaboradores)
Execução em Bambu: Instituto Bamcrus – Lúcio Ventania e equipe
Estrutura: Instituto Bamcrus e T3 Tecnologias Integradas
Construção: Grimaldi Engenharia – Frederico Grimaldi
Projeto de Instalações Elétricas: Lumatec Projetos e Consultoria
Projeto de Instalações Hidráulicas: Projeta Consultoria e Projetos de Instalação
Fotos: Gabriel Castro
A Cozinha Escola, com o intuito de unir a educação, cultura, design e sustentabilidade, foi desenvolvida pelos arquitetos Fernando Maculan e Mariza Machado Coelho, do escritório MACh Arquitetos, em parceria com Marcelo Rosenbaum e foi implementada no Mercado Central de Belo Horizonte, em Minas Gerais.
Pensada para abrigar cursos e promover trocas de diversas experiências através da culinária, teve com a construção, de acordo com os arquitetos responsáveis, o objetivo de preservar as características originais do local, e ao mesmo tempo, destacar-se visualmente. Para isso, decidiram enfatizar o valor do artesanato e do trabalho manual, fundamentais no contexto que a obra está inserida e, dessa forma, optaram pela concepção de uma malha de bambus permeável à visão. Ela configura o espaço, criando uma volumetria externa considerável e um ambiente interno aconchegante que, devido à transparência da superfície, permite ao público externo ver o que acontece dentro da escola e estimula a interação.
Além disso, por terem sido testadas várias malhas com bambus de diferentes dimensões, a organização da estrutura em linhas diagonais que faz, por sua vez, referência às fachadas vazadas do mercado de cobogós demandou um investimento expressivo. A execução, necessitada de amarrações feitas à mão com fibras naturais e de uma alta complexidade, foi realizada pelos integrantes do Instituto Bamcrus, comandada por Lúcio Ventania, com a ajuda de trinta de seus alunos de comunidades de baixa renda. A intervenção consegue se fazer presente e ser silenciosa ao mesmo tempo.

Figura 11: Malha de Bambus
Fonte: MACh Arquitetos

Figura 12: Vista interna da malha de bambus
Fonte: MACh Arquitetos

Figura 13: Corte Tranversal
Fonte: MACh Arquitetos

Figura 14: Vista Geral
Fonte: Rosenbaum
Em relação à disposição da Cozinha Escola no local, ela foi alocada no segundo pavimento do mercado, em um dos quatro mezaninos em formato de “L”, que compõem um dos anéis centrais formados por um grupo de lojas no andar inferior. Além disso, a intervenção arquitetônica foi pensada de forma a poder ser ampliada futuramente nas outras três lajes.

Figura 15: Disposição da Cozinha Escola no Mercado Central BH
Fonte: MACh Arquitetos

Figura 16: Vista da Cozinha Escola no andar inferior do Mercado Central BH
Fonte: MACh Arquitetos
Com 281 metros quadrados de área e um pé direito de 4 metros, a escola possui acesso pelo estacionamento em suas duas extremidades, feito por meio de escadas. Em uma das entradas, localizam-se os sanitários da Cozinha Escola, divididos em banheiros comuns e banheiros acessíveis para pessoas com necessidades especiais. Em seguida, tem-se um amplo espaço para receber eventos em exposições variadas e, logo após, encontra-se a sala de aula, com cadeiras para alunos direcionadas a uma bancada de cozinha, local onde são lecionados os cursos. Por fim, na outra extremidade da Cozinha Escola, próximo ao outro acesso, há um bloco de apoio destinado a abrigar insumos e equipamentos de cozinha.
Além disso, a locomoção interna no espaço pode ser feita pelas laterais em ambos os sentidos, já que possui aberturas tanto na parte direita quanto na parte esquerda do local. Dessa forma, o acesso da sala de aula, ambiente principal, pode ser realizado a partir das duas direções.

Figura 17: Área de aulas na Cozinha Escola
Fonte: MACh Arquitetos

Figura 18: Vista Superior da Cozinha Escola com destaque da malha de bambus
Fonte: MACh Arquitetos

Figura 19: Vista superior da Cozinha Escola
Fonte: MACh Arquitetos
No que diz respeito aos materiais utilizados na intervenção, além das malhas de bambu usadas na parte externa, citadas anteriormente, tratadas de modo a garantir a permanência e a preservação da malha, foram utilizados diversos materiais para o revestimento interno da intervenção. O piso do local é de concreto monolítico polido, e os blocos de apoio internos, de estrutura metálica com fechamentos de painéis de gesso acartonado, enquanto suas paredes interiores são revestidas com azulejos. O teto, por sua vez, é composto por painéis encurvados de gesso acetinado, apresentando uma forma de abóbada e foi pintado de branco a fim de refletir uniformemente a luz indireta.
É importante ressaltar que a acústica e a climatização do espaço foi possibilitada pelo fechamento com vidros associado à malha de bambus. Além disso, essa solução contribui para a visibilidade da sala para o público presente nas galerias térreas do mercado e no estacionamento.
CASA DAS MINAS

Figura 20: Casa das Minas vista em duas fachadas
Fonte: Fernando Maculan/Leonardo Finotti
Ficha técnica:
Local: Ouro Preto, Minas Gerais, Brasil
Ano do projeto: 2018
Tipologia construtiva: Habitação
Padrão arquitetônico: Arquitetura Contemporânea
Fotografia: Leonardo Finotti, Ricardo Lobato
Equipe De Projeto: Ricardo Lobato, Fernanda Gomes
Arquiteto Responsável: Fernando Maculan
Projeto Estrutural, Hidráulico e Elétrico: Paixão Engenharia LTDA
Estrutura: Paixão Engenharia
Instalações: Paixão Engenharia
Maquete: Ricardo Lobato
Área construída: 199 m²
Situado no Bairro de Caieras, nas proximidades da cidade de Ouro Preto, em Minas Gerais, o projeto “Casa das Minas” é uma edificação unifamiliar com volume cúbico e características da Arquitetura Contemporânea. Além disso, sobre o entorno da construção, tem-se que ela foi inserida em uma grande área verde com um relevo acidentado e é cercada por uma vegetação densa ao fundo e às laterais.
Sobre a área bruta construída, a edificação possui 199,03m². Porém, através da boa distribuição espacial dos cômodos e do mobiliário, tem-se a sensação de que a área construída é ainda mais generosa.

Figura 21: Residência e entorno
Fonte: Fernando Maculan/Leonardo Finotti
Em relação à implantação do projeto no terreno, afirma-se que esse possui um aclive no meio da área construída que foi utilizado pelos arquitetos para alcançar o objetivo de hierarquização dos cômodos no que se refere ao grau de privacidade. Dessa forma, nas figuras abaixo, percebe-se essa inclinação do terreno e as adaptações de espaço feitas com o uso da escada lateral e da distribuição dos pavimentos a partir desse desnível.

Figura 22: Planta de Implantação
Fonte: ArchDaily

Figura 23: Corte AA
Fonte: ArchDaily
Acerca dos percursos, é válido destacar três trajetos da edificação. A começar pelo primeiro trajeto, iniciando na garagem, passando pela cozinha, sala de jantar e sala de estar, e, podendo ou não, ascender às áreas privativas da casa, onde estão localizados os dormitórios, banheiros e área de serviço. No segundo trajeto, existe a opção de entrada na residência pelas portas da fachada principal (leste), que direcionam para a sala de jantar, sala de estar e proporcionam o mesmo percurso interno do primeiro trajeto. Já no terceiro trajeto, há uma entrada na fachada norte que se abre para a sala de estar e para as escadas, que levam até os dormitórios e banheiros. Por fim, outros locais da casa podem ser acessados de maneira externa, como a casa de máquinas, o cômodo de gás, a piscina, um banheiro externo e a cobertura.

Figura 24: Planta térrea da Casa das Minas
Fonte: ArchDaily
Na fachada principal (leste) da Casa das Minas estão os ambientes menos privativos, como cozinha, sala de jantar e sala de estar. Tais cômodos não possuem divisórias físicas que atinjam a totalidade do pé direito dessa primeira parte da moradia. Ao invés disso, a distinção dos cômodos se dá através da diferença das iluminações desses ambientes, bem como por meio dos distintos mobiliários e materiais aplicados.

Figura 25: Distribuição dos cômodos menos privativos
Fonte: Leonardo Finotti
Ao fundo da imagem acima, vê-se uma escada, ao lado da entrada da fachada norte da residência. Essa escada dá acesso ao segundo pavimento da Casa das Minas, onde se localiza o setor íntimo da casa. O pavimento superior da residência conta com dois dormitórios, dois banheiros, uma área de serviço e um closet, esse que, juntamente a um dos dormitórios e a um dos banheiros, forma uma suíte.
Através do terreno inclinado e da criação de dois níveis, tem-se a distinção dos seus respectivos pés direito, isso, pois, a parte social possui um pé direito mais alto, enquanto quartos e área íntima, em um pavimento superior, possuem pé direito menor. Pontua-se que, na separação entre os níveis, há um armário contínuo com portas em treliça de madeira que guarda objetos rotineiros da família residente. Em cima desse, há um deck, de cerca de 1 metro de largura.

Figura 26: Depósitos internos
Fonte: Fernando Maculan/Leonardo Finotti
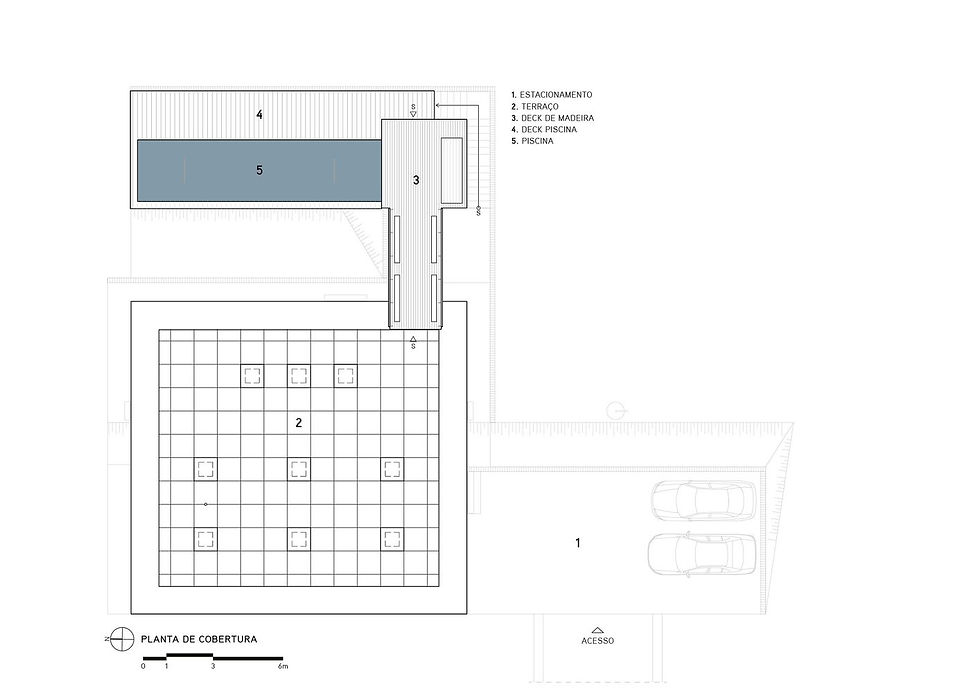
Ademais, atrás da edificação, há uma piscina acompanhada de uma casa de máquinas, um banheiro, um cômodo de gás e com acesso ao terraço da casa. Ressalta-se que essa área fica entre a estrutura edificada e um aclive ascendente, permitindo maior privacidade aos moradores da residência no momento de usufruto da área de lazer da Casa das Minas.

Figura 27: Planta de cobertura
Fonte: ArchDaily
A respeito dos materiais usados para a composição da forma, têm-se os seguintes: vidro, esquadrias de madeira, paredes de blocos de concreto, laje também em concreto aparente e piso em cimento natado vermelho, esse presente nos dois andares. Destaca-se que o envidraçamento coordenado pela estrutura também permite a fluidez do espaço externo e interno, em que a atmosfera criada é modificada ao longo do dia, com variações de sombra e luz.

Figura 28: Sombras e luz, vista lateral
Fonte: Leonardo Finotti

Figura 29: Blocos de concreto em detalhe
Fonte: Leonardo Finotti

Figura 30: Fachada Frontal
Fonte: Leonardo Finotti

Figura 31: Relação interior-exterior: cozinha
Fonte: Leonardo Finotti

Figura 32: Vista superior, claraboias em detalhe
Fonte: Leonardo Finotti
Ademais, no que se refere à estrutura da edificação, tem-se que essa é composta por pilares de concreto moldados in loco, blocos de concreto e uma laje de concreto que sustentam a edificação, criando, assim, um sistema estrutural simples baseado em pilares que recebem os esforços da cobertura e os distribuem para a laje que também atua como piso do primeiro pavimento da edificação. Destaca-se que esse tipo de estrutura possibilita uma maior quantidade de aberturas, como visto e utilizado na Casa das Minas para maior interação entre interior e exterior.

Figura 33: Corte com destaque na estrutura
Fonte: ArchDaily

Figura 34: Vista lateral com destaque na base de concreto
Fonte: Leonardo Finotti

Figura 35: Elevação Lateral
Fonte: ArchDaily

Figura 36: Maquete com destaque na estrutura
Fonte: ArchDaily
Outra questão relevante na edificação está nas adequações feitas na arquitetura para atender às necessidades de conforto ambiental. Para entender tal questão, vale falar sobre a classificação bioclimática de Ouro Preto, que possui em suas diretrizes construtivas as recomendações de aquecimento solar na construção, ventilação cruzada e insolação nos ambientes. Certos disso, o projeto da equipe atende esses requisitos ao produzir um objeto arquitetônico que conta com fachadas que permitem a entrada dessa luz em boa parte do dia e aberturas por janelas e elementos vazados internos que permitem a ventilação cruzada por todo o sistema.

Figura 37: Elementos vazados internos e janelas em destaque
Fonte: Leonardo Finotti
AUTOReS
Anna Gabriele Duarte, Anna Pires Diniz, Gustavo Fernandes, Jet Tibúrcio e Matheus Yuji. Estudantes da Escola de Arquitetura da UFMG.
Belo Horizonte, Outubro de 2023.
REFERÊNCIAS BIBLIOGRÁFICAS
Cozinha-escola. Mach Arquitetos. Disponível em: <https://www.mach.arq.br/2011-cozinha-escola/> . Acesso em: 13 set. 2023.
Cozinha Escola Nestlé. Rosenbaum. Disponível em: <https://rosenbaum.com.br/escritorio/projetos/cozinha-escola-nestle/>. Acesso em: 13 set. 2023.
MELLO, Tais. Cozinha-escola Nestlé. Galeria da Arquitetura. Disponível em: <https://m.galeriadaarquitetura.com.br/projeto/mach-arquitetos_rosenbaum_mach-arquitetos_rosenbaum_/cozinhaescola-nestle/561>. Acesso em: 13 set. 2023.
Casa das Minas / MACh Arquitetos. ArchDaily, 2023. Disponível em: <https://www.archdaily.com.br/br/986087/casa-das-minas-mach-arquitetos>. Acesso em 14 set. 2023
ROHLFS, Lenora; GURGEL, Leopoldo. Casa das Minas. Tendências, 2022. Disponível em: <https://www.tendenciasmag.com.br/casa-das-minas/>. Acesso em 14 set. 2023
OBI, Tomi. MACh Arquitetos projeta refúgio de concreto nos arredores de Ouro Preto, Brasil. Avontuura, 2022. Disponível em: <https://www.avontuura.com/casa-das-minas-mach-arquitetos/>. Acesso em 14 set. 2023
FIONOTTI, Leonardo. Casa das Minas. Leonardo Finotti Architectural photographer. Disponível em: <http://www.leonardofinotti.com/projects/casa-das-minas>. Acesso em 14 set. 2023
Fernando Maculan. Disponível em: http://fernandomaculan.com/sobre. Acesso em 14 set. 2023
MACh Arquitetos. Disponível em: https://www.galeriadaarquitetura.com.br/escritorio-de-arquitetura/a-p/mach-arquitetos/113410/. Acesso em 14 set. 2023
MACh Arquitetos. Disponível em: https://www.archdaily.com.br/br/office/mach-arquitetos. Acesso em 14 set. 2023
Obras. Disponível em: https://www.mach.arq.br/. Acesso em 14 set 2023




Comentários