Arthur Casas
- ACR 113
- 12 de dez. de 2025
- 19 min de leitura

Figura 01: Arthur Casas. Fonte: Studio Arthur Casas.
biografia
Arthur Casas nasceu em 1961, na cidade de São Paulo. Segundo o arquiteto, a casa que mais marcou sua infância, foi a construída pelo seu pai no bairro City Lapa, um bairro cem por cento residencial, localizado na zona oeste da capital paulista. Outro local que marcou sua infância, foi a casa de seus avós, onde, nos finais de semana, passava horas desenhando.
Desde a infância Arthur Casas demonstrou aptidão para o desenho e a criação de espaços. Como ele mesmo conta: “Com oito anos, eu já criava projetinhos. Aos onze, desenhei a planta baixa de uma casa interessante, que eu faria agora, porque tinha distribuição que até hoje me agrada. Eu colocava a sala e o jardim nos fundos e a garagem e a cozinha na frente”.
É destacável que tal aptidão para a arquitetura se manifestou precocemente, mesmo sem influências familiares diretas na área. Seguindo sua inclinação natural, em 1983, graduou-se em Arquitetura e Urbanismo pela Universidade Presbiteriana Mackenzie, uma das mais tradicionais instituições de ensino do país. Além de seu lado arquitetônico, o trabalho de Casas também é profundamente ligado ao design de interiores e mobiliário.
Influências
Para Arthur Casas, suas principais referências na arquitetura surgiram durante a faculdade. Entre elas, Frank Lloyd Wright, cuja obra e literatura tiveram grande influência em seu aprendizado sobre arquitetura. No início de sua carreira, seus mestres de design e arquitetura continuaram sendo estrangeiros, como o suíço Mario Botta e o finlandês Alvar Aalto. O olhar de Casas voltou-se para a arquitetura brasileira apenas alguns anos depois, por meio do modernismo de Paulo Mendes da Rocha e Décio Tozzi.
Casas encontrou inspiração sobretudo no movimento modernista. Essas influências manifestam-se na adoção de plantas livres, na integração espacial entre áreas internas e externas, no emprego de amplos panos de vidro como estratégia de transparência e permeabilidade visual e na racionalidade estrutural que orienta a organização dos componentes arquitetônicos. Ainda assim, ele propõe uma releitura contemporânea desse movimento, buscando atualizar seus fundamentos e superar aquilo que considera uma de suas principais limitações: a negligência em relação ao conforto e à vida cotidiana das pessoas.
Carreira
Em 1990, Arthur Casas fundou o Studio Arthur Casas, com sedes em São Paulo e Nova York, reunindo mais de 70 profissionais entre arquitetos, urbanistas e designers. O escritório atua em projetos residenciais, comerciais, institucionais e urbanos em diversos países da Europa, Ásia e América.
A carreira de Arthur Casas é marcada pela versatilidade e pela integração entre diferentes escalas do design e da arquitetura. Sua atuação abrange desde o desenho de móveis e interiores até a concepção de projetos residenciais, comerciais e urbanos. Fazendo com que o Studio Arthur Casas possua um extenso portfólio de projetos de destaque.
Ao longo de sua carreira, Arthur Casas e seu estúdio já foram reconhecidos com inúmeros prêmios, incluindo o World Architecture Festival, Best of Year, iF Design Award, Frame Awards, Red Dot Design Award, e o Architecture Masterprize. No Brasil, o estúdio recebeu prêmios de publicações como A&D e Casa Vogue Design, além de destaques e premiações do Instituto de Arquitetos do Brasil (IAB).
Parcerias
Ao longo da carreira, Arthur Casas fez parcerias com marcas e profissionais de grande relevância, atribuindo ainda mais relevância ao seu nome na área da arquitetura e design contemporâneos. A parceria com a editora Rizzoli New York, resultou na publicação do livro "Arthur Casas. Architecture", reunindo vinte de seus projetos mais expressivos.
É importante destacar que, dentro do próprio Studio Arthur Casas, o arquiteto trabalha com uma equipe colaborativa, tendo como sócios Gabriel Ranieri, Regiane Khristian, Nara Telles e Raissa Furlan, que participam ativamente do desenvolvimento conceitual e técnico dos projetos.
Projetos
Residencial
2008 - Casa AC, São Paulo, SP, Brasil.

Figura 02: Casa AC, Arthur Casas. Fonte: Studio Arthur Casas.
2010 - Casa MP, Bragança Paulista, SP, Brasil - Regiane Khristian.
2012 - Casa FC, Itu, Brasil - Alexandra Kayat, Regiane Khristian e Renata Adoni.
2012 - Casa K, São Paulo, SP, Brasil - Beto Cabariti, Regiane Khristian e Renata Adoni.
2012 - Condomínio West Whales, São Sebastião, SP, Brasil - Flávia Castellan, Regiane Khristian, Milena Chieco e Renata Adoni.
2013 - Casa AL, Rio de Janeiro, RJ, Brasil - Regiane Khristian, Marina Werfel e Renata Adoni.
2013 - Casa C, São Paulo, SP, Brasil - Regiane Khristian, Marina Werfel, Eduardo Mikowski, Marília Pelegrini, Beatriz Almeida e Carolina Carrieri.

Figura 03: Casa C, Arthur Casas. Fonte: Studio Arthur Casas.
2014 - Casa MS, Porto Feliz, SP, Brasil - Alexandra Kayat, Renata Adoni, Regiane Khristian e Fernanda Müller.
2014 - Casa SB Irvington, Irvington, Nova Iorque, Estados Unidos - Joana Pini, Marina Werfel, Lenka Soares, Paddy Steinschneider, Marina Werfel e Livia Ribas.
2014 - Casa MD, São Sebastião, SP, Brasil - Alexandra Kayat, Regiane Khristian, Renata Adoni, Alessandra Mattar, Marina Werfel e Fernanda Muller.
2015 - Casa DS, São Paulo, SP, Brasil - Carolina Carrieri, Marina Werfel, Joana Pini, Mariana Kulisch Bilman, Daniel Vianna e Miti Sameshima.
2015 - Casa EK, São Sebastião, SP, Brasil - Alexandra Kayat, Alessandra Mattar, Regiane Khristian, Mariana Kulisch Bilman, Miti Sameshima e Marina Werfel.
2015 - Casa SB, São Sebastião, SP, Brasil.

Figura 04: Casa SB, Arthur Casas. Fonte: Studio Arthur Casas.
2018 - Casa Golf Course, Porto Feliz, SP, Brasil - Beto Cabariti.
2019 - Casa Brownstone, Nova Iorque, Estados Unidos - Tamy Tutihashi, Natalia Valente, Raissa Furlan, Victoria Chaves, Paulina Tabet e André Honda.
2019 - Casa YB, São Paulo, SP, Brasil - Ana Beatriz Braga, Fernanda Altemari e Luiz Henrique Lourenço.
2020 - Casa R, São Paulo, SP, Brasil - Eduardo Mikowski, Rafael Palombo, Ana Beatriz Braga, Debora Cardoso, Manuela Girardi e Victoria Chaves.
2020 - Casa JD, São Sebastião, SP, Brasil - Eduardo Mikowski, Gabriel Ranieri, Rafael Palombo, Claire Dayan, Victória Chaves, Alexandra Kayat, Ana Beatriz Braga e Camilla Dall’Oca.
2022 - Casa LM, Eldorado do Sul, RS, Brasil.

Figura 05: Casa LM, Arthur Casas. Fonte: Studio Arthur Casas.
2022 - Casa Iporanga, Iporanga, SP, Brasil - Regiane Khristian.
2022 - Casa IG, São Paulo, SP, Brasil - Eduardo Mikowski, Rafael Palombo, Ana Dora Fortes, Paulina Tabet, Carolina Gonçalves e Gabriela Panico.
2022 - Casa Mata Atlântica, Guarujá, SP, Brasil.
2023 - Casa Pacaembu, São Paulo, SP, Brasil - Nara Telles, Rafael Palombo, Nicholas Theo, Eduardo Mikowski, Fernanda Altemari, Augusto Mattos, Amanda Tamburus, Ana Maria Pedreschi e Beatriz Camasmie.
2025 - Casa PCH, Malibu, Estados Unidos.
2025 - Casa Bottlebrush, Malibu, Estados Unidos.

Figura 06: Casa Bottlebrush, Arthur Casas. Fonte: Studio Arthur Casas.
2025 - Casa Veracruz, Veracruz, México.
2025 - Casa Algarve, Algarve, Portugal.
2025 - Casa Comporta, Alentejo, Portugal.
2025 - Casa Marbella I, Marbella, Espanha.
2025 - Casa Marbella II, Marbella, Espanha.
2025 - Casa Kent, Kent, Inglaterra.

Figura 07: Casa Kent, Arthur Casas. Fonte: Studio Arthur Casas.
Comercial
2005 - Loja Natura Paris, Paris, França.

Figura 08: Loja Natura Paris, Arthur Casas. Fonte: Studio Arthur Casas.
2007 - Loja Alexandre Herchcovitch, Tóquio, Japão.
2008 - Restaurante Kaá, São Paulo, SP, Brasil.
2008 - Shopping Cidade Jardim, São Paulo, SP, Brasil.
2009 - Hotel Joá, Rio de Janeiro, RJ, Brasil.
2011 - Restaurante Kosushi Cidade Jardim, São Paulo, SP, Brasil.

Figura 09: Restaurante Kosushi Cidade Jardim, Arthur Casas. Fonte: Studio Arthur Casas.
2011 - Restaurante Alma María, São Paulo, SP, Brasil - Maria Magalhães, Marcela Muniz, Renata Adoni, Daniela Diniz, Fernanda Castelo Branco, Cristiane Trolesi, Milena Chieco e Bruna Rizzi.
2011 - Shopping JK Iguatemi, São Paulo, SP, Brasil.
2012 - Loja Mistral, São Paulo, SP, Brasil.
2013 - Loja Livraria Saraiva, Rio de Janeiro, RJ, Brasil - Cristiane Trolesi, Renata Adoni, Mônica Nickel, Marcela Muniz, Gabriel Ranieri, André Chung e Christiana Matos.
2015 - Restaurante Grand Hyatt RJ, Rio de Janeiro, RJ, Brasil.

Figura 10: Restaurante Grand Hyatt RJ, Arthur Casas. Fonte: Studio Arthur Casas.
2015 - Loja H.Stern NY, Nova Iorque, Estados Unidos - Mariana Werfel, Cristiane Trolesi, Natalia Valente, Renata Adoni, Lenka Soares, Paulo Sabatini, Arnault Weber, Felipe Bueno, Mariana Santoro, Nara Telles e Bruno Arinella.
2015 - Gastrobar Toro, Los Cabos, México - Marília Pellegrini, Marcela Muniz, Renata Adoni, Maria Magalhães, Fernanda Muller, Luisa Vicentini, Flávia Campos, Daniela Diniz, Beto Cabariti, Eduardo Lofti e Lucas Takaoka.
2017 - Escritório HY, Curitiba, PR, Brasil - Flávia Campos, Luísa Vicentini, Victoria Chaves, Guilherme Cardoso, Marina Menossi, Henrique Zulian e Eduardo Lotfi.
2017 - Escritório HA, São Paulo, SP, Brasil - Nara Telles, Cristiane Trolesi, Maiara Zaia, Raul Valadão, Débora Cardoso, Victória Chaves, Adriana Andugar, Marina Menossi e Manuela Girardi.
2017 - Hotel Emiliano Rio, Rio de Janeiro, RJ, Brasil - Cristiane Trolesi, Nara Telles, Felipe Bueno, Adriana Yin, Nara Rosetto, Victoria Chaves, Renata Adoni, Raul Cano, Lucas Takaoka e Adriana Andugar.
2017 - Restaurante Kosushi, São Paulo, SP, Brasil - Nara Cardoso, Adriana Yin, Raul Valadão, Débora Cardoso, Victória Chaves, Manuela Girardi e Marina Menossi.

Figura 11: Restaurante Kosushi, Arthur Casas. Fonte: Studio Arthur Casas.
2017 - Hotel Emiliano Rio, Rio de Janeiro, RJ, Brasil - Cristiane Trolesi, Nara Telles, Felipe Bueno, Adriana Yin, Nara Rosetto, Victoria Chaves, Renata Adoni, Raul Cano, Lucas Takaoka e Adriana Andugar.
2019 - Restaurante Kosushi Miami, Miami, Estados Unidos - Tamy Tutihashi, , Gabriel Ranieri, Nara Telles, Natalia Valente, Luisa Mader, Vinicius Prearo, Marília de Castro, Eduardo Lofti e Henrique Zulian.
2019 - Shopping Jockey Plaza, Curitiba, PR, Brasil - Gabriel Ranieri, Nara Telles e Raul Valadão.
2020 - Shopping CJ Shops, São Paulo, SP, Brasil - Nara Telles, Gabriel Ranieri, Raul Valadão, Paulina Tabet e Rafael Palombo.
Edifícios
2013 - Edifício Morás, São Paulo, SP, Brasil - Gabriel Ranieri, Regiane Khristian, Ana Beatriz Braga e Marcelo Beretta.

Figura 12: Edifício Morás, Arthur Casas. Fonte: Studio Arthur Casas.
2015 - Edifício Melo Alves, São Paulo, SP, Brasil - Gabriel Ranieiri, Regiane Khristian, Ana Beatriz Braga e Marcelo Beretta.
2017 - Edifício Único, São Paulo, SP, Brasil - Regiane Khristian, Gabriel Ranieri, Beto Cabariti, Ana Beatriz Braga, Pedro Ribeiro, Marcelo Beretta e Natalia Minas.
2017 - Edifício Jardim Guedala, São Paulo, SP, Brasil - Ana Beatriz Braga, Regiane Khristian, Alexandra Kayat, Eduardo Mikowski e Gabriel Ranieri.

Figura 13: Edifício Jardim Guedala, Arthur Casas. Fonte: Studio Arthur Casas.
2018 - Edifício VN Ferreira Lobo, São Paulo, SP, Brasil - Ana Beatriz Braga, Gabriel Ranieri, Pedro Ribeiro e Regiane Khristian.
2019 - Edifício Ícaro, Curitiba, PR, Brasil - Gabriel Ranieri, Regiane Khristian, Cadu Villela, Ana Beatriz Braga, Natalia Minas, Marcelo Beretta, Beto Cabariti, Reginaldo Machado, Rodrigo Carvalho, Joara Tomba, Deborah Branca, Flávia Rocha, Raissa Furlan, Nara Teles, Raimundo Borges, Rafael Palombo, Victória Chaves, Camilla Dall’Oca, Raul Cano, Lucas Takaoka e Henrique Zulian.
2021 - Edifício Luciana 250, Porto Alegre, RS, Brasil.

Figura 14: Edifício Luciana 250, Arthur Casas. Fonte: Studio Arthur Casas.
2023 - Edifício Epic City Home, Goiânia, GO, Brasil - Eduardo Mikowski, Fernando Lima, Alessandra Mattar, Miti Sameshima e Giuliana Maia.
2024 - Edifício Teená, Porto Alegre, RS, Brasil.
2024 - Edifício Bioma, São Paulo, SP, Brasil.

Figura 15: Edifício Bioma, Arthur Casas. Fonte: Studio Arthur Casas.
2025 - Edifício Sete, São Paulo, SP, Brasil.
2025 - Edifício Ibaté, São Paulo, SP, Brasil.
2026 - Edifício Ritmo, São Paulo, SP, Brasil - Gabriel Ranieri, Cadu Villela, Gabriel Leitão, Rafael Palombo, Renan Prandini, Roberto Zocchio, João Marcos Pobbe, Manoela Vilaça, Marcelo Melo e Vitória D'Amato.

Figura 16: Edifício Ritmo, Arthur Casas. Fonte: Studio Arthur Casas.
Interiores
2009 - Apartamento Avenida Atlântica, Rio de Janeiro, RJ, Brasil.

Figura 17: Apartamento Avenida Atlântica, Arthur Casas. Fonte: Studio Arthur Casas.
2009 - Apartamento DG NY, Nova Iorque, Estados Unidos.
2011 - Cobertura Urca, Rio de Janeiro, RJ, Brasil - Marília Pellegrini, Milena Chieco, Flávia Castellan, Flávia Castellan, Joana Pini, Renata Adoni, Bruna Rizzi.
2011 - Apartamento GZ NY, Nova Iorque, Estados Unidos.
2012 - Apartamento VS, Rio de Janeiro, RJ, Brasil - Marília Pellegrini, Milena Chieco, Renata Adoni e Joana Pini.
2013 - Apartamento GN, Rio de Janeiro, RJ, Brasil.

Figura 18: Apartamento GN, Arthur Casas. Fonte: Studio Arthur Casas.
2013 - Apartamento DB, Nova Iorque, Estados Unidos - Marina Werfel, Lenka Soares e Livia Ribas.
2014 - OM Townhouse, Nova Iorque, Estados Unidos - Marina Werfel, Renata Adoni, Babi Carvalho, Natalia Valente e Lenka Soares.
2015 - Apartamento AC NY, Nova Iorque, Estados Unidos.
2018 - Apartamento SS, São Paulo, SP, Brasil - Alessandra Mattar, Victoria Chaves e Sabrina Aron.
2018 - Four Seasons Private Residences, São Paulo, SP, Brasil - Flávia Romi Campos, Luísa Vicentini, Victoria Chaves, Marina Werfel, Daniel Vianna, Raul Valadão, Renata Adoni, Adriana Andugar, Lucas Takaoka, João Amaral, Guilherme Cardoso, Julia Galves e Manuela Girardi.

Figura 19: Four Seasons Private Residences, Arthur Casas. Fonte: Studio Arthur Casas.
2019 - Apartamento Ipanema, Rio de Janeiro, RJ, Brasil - Alessandra Mattar, Victoria Chaves e Sabrina Aron.
2020 - Apartamento Praça Henrique Monteiro, São Paulo, SP, Brasil.
2020 - Apartamento TM, Lisboa, Portugal - Daniela Costa, Beto Cabariti, Alessandra Mattar e Miti Sameshima.
2020 - Apartamento TP, Paris, França - Raissa Furlan, Victoria Chaves, Camilla Dall’oca e Luisa Mader.
2020 - Apartamento ACL, São Paulo, SP, Brasil - Cristiane Trolesi e Rafael Caldas.

Figura 20: Apartamento ACL, Arthur Casas. Fonte: Studio Arthur Casas.
2021 - Apartamento LP, Rio de Janeiro, RJ, Brasil - Rafael Palombo, Vitória Chaves, Camilla Dall'Oca, Paulina Tabet, Claire Khafif, Alessandra Mattar, Miti Sameshima, Sabrina Aron, Amanda Tamburus, Giuliana Maia e Luisa Mader.
2021 - Apartamento Boa Viagem, Recife, PE, Brasil - Regiane Khristian, Rafael Palombo, Paulina Tabet, Amanda Tamburus, Luisa Mader, Fernanda Costa, Leonardo Navarro e Susanna Brolhani.
2022 - Apartamento HG, São Paulo, SP, Brasil.
2022 - Apartamento JM, Curitiba, PR, Brasil.
2022 - Apartamento Consolação, São Paulo, SP, Brasil - Gabriel Leitão, Tatiana Ordine, Rafael Palombo, Raul Valadão, Paulina Tabet e Vinicius Fadel.

Figura 21: Apartamento Consolação, Arthur Casas. Fonte: Studio Arthur Casas.
2022 - Apartamento Sarandi, São Paulo, SP, Brasil - Gabriel Leitão, Tatiana Ordine, Rafael Palombo, Fabíola Andrade, Milena Chieco e Raul Valadão.
2023 - Apartamento Orla, Rio de Janeiro, RJ, Brasil - Gabriel Leitão, Camila Barros, Rafael Palombo e Fabiola Andrade.
2024 - Regents Park Townhouse, Londres, Reino Unido - Gabriel Leitão, Tatiana Ordine, Fabíola Andrade, Manoela Vilaça e Gabriel Contreira.
2024 - Apartamento Terrazzo, São Paulo, SP, Brasil - Gabriel Leitão, Tatiana Ordine, Rafael Palombo e Fabíola Andrade.
2025 - Apartamento Sete, São Paulo, SP, Brasil.

Figura 22: Apartamento Sete, Arthur Casas. Fonte: Studio Arthur Casas.
Desig
2004 - Banco Aymoré, São Paulo, SP, Brasil.

Figura 23: Banco Aymoré, Arthur Casas. Fonte: Studio Arthur Casas.
2009 - Aparador Willys, São Paulo, SP, Brasil.
2009 - Escrivaninha Asa, São Paulo, SP, Brasil.
2012 - Aparador Onda, São Paulo, SP, Brasil.

Figura 24: Aparador Onda, Arthur Casas. Fonte: Studio Arthur Casas.
2012 - Aparador Aipim, São Paulo, SP, Brasil.
2011 - Mesa Arquipélago, São Paulo, SP, Brasil.
2014 - Cadeira Saci, São Paulo, SP, Brasil.

Figura 25: Cadeira Saci, Arthur Casas. Fonte: Studio Arthur Casas.
2015 - Cadeiras Lampião e Maria Bonita, São Paulo, SP, Brasil.
2015 - Coleção Jacarandá, São Paulo, SP, Brasil.
2016 - Coleção Mineral, São Paulo, SP, Brasil.

Figura 26: Coleção Mineral, Arthur Casas. Fonte: Studio Arthur Casas.
2016 - Sofá Ela, São Paulo, SP, Brasil.
2017 - Relógio HS, São Paulo, SP, Brasil.
2017 - Carrinho de Chá Flintstones, São Paulo, SP, Brasil.

Figura 27: Carrinho de Chá Flintstones, Arthur Casas. Fonte: Studio Arthur Casas.
2017 - Mesa de Cabeceira Tupi, São Paulo, SP, Brasil.
2019 - Linha Toras, São Paulo, SP, Brasil.
2019 - Abajur Cerâmica, São Paulo, SP, Brasil.

Figura 28: Abajur Cerâmica, Arthur Casas. Fonte: Studio Arthur Casas.
Premiações
1989 - Prêmio Design MCB: Exposição Itinerante.
2006 - Prêmio Design MCB: Moveis.
2007 - Prêmio Design MCB: Produtos.
2008 - Red Dot Design Award: Product Design.
2010 - Wallpaper Design Awards: Best Restaurant.
2012 - Best of Year Awards: Retail.
2012 - Retail Design Institute.
2014 - Retail Design Institute.
2016 - iF DESIGN AWARD: Interior Design.
2015 - World Architecture Festival: World Pavilion of the Year.
2017 - Best of Year Awards: International Boutique Hotel.
2017 - iF DESIGN AWARD: Product Design.
2017 - Best of Year Awards: International Boutique Hotel.
2018 - Architecture MasterPrize: Architectural Design/ Green Architecture.
2018 - Best of Year Awards: Dream House.
2018 - Best of Design Awards: Architectural Design/ Green Architecture.
2018 - FRAME Awards: Hotel of the Year.
2018 - iF DESIGN AWARD: Interior Design.
2019 - Best of Year Awards: Beach House.
2019 - Prêmio Deca: Best in Show Ceramics of Brasil.
2020 - Best of Year Awards: Multi-Unit Housing.
2020 - Prêmio Saint-Gobain de Arquitetura - Habitat Sustentável: Profissional/Projeto Residencial.
2020 - Rethinking Awards: Residential Buildings.
2021 - Best of Year Awards: Showroom.
2021 - iF DESIGN AWARD: Product Design.
2021 - iF DESIGN AWARD: Architecture.
2022 - Best of Year Awards: Large City House.
2022 - Rethinking Awards: Habitation.
2023 - Best of Year Awards: Large City House.
2024 - Best of Year Awards: Large Residential Transformation.
2024 - Best of Year Awards: Multiunit Housing.
2024 - Paris Design Awards: Architecture/Housing.
2024 - Rethinking The Future Awards: Urban Design.
2025 - Paris Design Awards: Architecture/Refurbishment.
2025 - Paris Design Awards: Interior Design/Hospitality.
2025 - World Architecture Festival: World Interior of the Year.
Projetos Escolhidos
Hotel Emiliano RJ

Figura 29: Hotel Emiliano. Fonte: ArchDaiy.
Ficha Técnica
Arquiteto: Arthur Casas
Tipologia de uso: Comercial
Área Construída: 9.734 m²
Ano: 2017
Análise da Obra
O Hotel Emiliano está localizado em um terreno de 956,35m² em frente à Praia de Copacabana, na Zona Sul da cidade do Rio de Janeiro. De acordo com a lei que limita o gabarito e a distância de edifícios construídos próximos à orla, devido à sombra que os mesmos podem lançar na praia, o edifício tem um total de 9734,37 m² divididos em doze andares, dos quais noventa acomodações variam de 42 a 120 metros quadrados.
Com um design singular, a fachada do Hotel Emiliano se destaca das demais. Inspirada nas curvas da paisagem do Rio de Janeiro e desenhada exclusivamente para esse hotel, os cobogós sobrepõem todo o edifício e quebram a continuidade dos blocos de concreto das construções vizinhas.

Figura 30: Fachada, Hotel Emiliano. Fonte: ArchDaiy.
Os painéis foram desenvolvidos em moldes metálicos com fibra de vidro injetada em dois padrões diferentes, através de uma tecnologia específica para resistir a maresia. Fixados em esquadrias com abertura semelhante à de portas dobráveis, podem ser completamente abertos nas varandas, criando diferentes configurações de fachada. Quando fechados, os painéis garantem privacidade aos apartamentos, sem perder a ventilação e iluminação e sem comprometer a vista da paisagem.

Figura 31: Cobogós, Hotel Emiliano. Fonte: ArchDaiy.

Figura 32: Esboço Cobogós, Hotel Emiliano. Fonte: ArchDaiy.
O Emiliano foi projetado para que parte do pavimento térreo pudesse operar como área de uso comum entre hóspedes e visitantes externos. Para viabilizar essa diretriz, inseriu-se um bar junto ao acesso principal, configurando um ponto de permanência e distribuição. As demais zonas do térreo foram setorizadas em dois fluxos independentes: o primeiro direciona ao restaurante e ao centro de negócios; o segundo conduz a recepção, onde estão os elevadores que levam ao hotel, estabelecendo uma área de circulação restrita aos hóspedes.

Figura 33: Planta Térreo, Hotel Emiliano. Fonte: ArchDaiy.

Figura 34: Recepção, Hotel Emiliano. Fonte: ArchDaiy.
No primeiro pavimento temos salas de eventos e uma sala de conferência. A sala de conferência, localizada no lado esquerdo da planta, tem um total de 61m² e pode ser utilizada como sala de apoio ou parte integrante do layout de eventos. As salas de eventos, localizadas no lado direito da planta, duas delas possuem área total de 60m² e a terceira 120m². Todas as salas de eventos possuem portas modulares, que fazem a integração ou isolamento das mesmas, adaptando o ambiente de acordo com o número de participantes do evento. Nesse pavimento, Arthur Casas privilegia a luz natural, através de uma varanda, que se estende por toda a fachada, com vista para a Orla de Copacabana.

Do segundo ao nono pavimento, mantém-se um módulo tipológico padronizado. Onde, no lado direito da planta, temos acomodações de 75 m² nas extremidades e 60 m² no centro, ambas com arranjo integrado de dormitório, varanda, sala e banheiro. Além de uma escada próxima ao quarto inferior. No lado esquerdo da planta, temos suítes de 45 m² e 42 m², configuradas com dormitório e banheiro integrados. Também temos três elevadores sociais, um elevador de serviço e uma escada de incêndio. Como pode ser observado através da projeção na planta, o pavimento térreo e superior, são maiores que os demais.

Figura 36: Planta Pavimento Tipo, Hotel Emiliano. Fonte: ArchDaily.
No decimo pavimento, temos duas acomodações de 120 m², no lado direito da planta, que contam com dormitório, sala e banheiro integrados, além de cozinha e varanda. Um desses apartamentos pode ser conectado com outras duas suítes 45 m², sendo elas as duas primeiras do lado esquerdo. Os demais apartamentos do pavimento, localizados no lado esquerdo da planta, possuem 45 m² e seguem o padrão descrito anteriormente.

Figura 37: Planta Décimo Pavimento, Hotel Emiliano. Fonte: ArchDaily.
No decimo primeiro andar, temos duas acomodações, além do spa e academia. A acomodação localizada no lado direito da planta, tem 90m² e conta com dormitório, sala, varada e banheiro integrados, já a do lado esquerdo, tem 75m² e conta com dormitório, sala e banheiro integrados.

Na cobertura, temos um bar, um restaurante, um deck e uma piscina de borda infinita. Esse conjunto de programas foi organizado de modo a potencializar as vistas panorâmicas para o mar de Copacabana, criando um ambiente de convivência que combina lazer, contemplação e gastronomia. A área exprime a busca de Arthur Casas de efetuar a integração entre interior e exterior. É destacável, que a piscina de borda infinita reforça a sensação de continuidade com o horizonte.

Figura 39: Planta Cobertura, Hotel Emiliano. Fonte: ArchDaily.

Figura 40: Piscina de Borda Infinita, Hotel Emiliano. Fonte: ArchDaily.
O interior do Hotel remete ao modernismo brasileiro. Harmonizando a elegância e conforto com a informalidade carioca. Um painel do artista Roberto Burle Marx é exibido na recepção, e serviu como inspiração inicial para Arthur Casas enquanto desenhava os ambientes internos. Os tecidos e texturas do saguão e do mobiliário dos dormitórios foram escolhidos em tons de verde presentes no painel, prestando homenagem à natureza da Baía de Guanabara.

Figura 41: Saguão, Hotel Emiliano. Fonte: ArchDaily.

Figura 42: Tecidos e Materiais, Hotel Emiliano. Fonte: Studio Arthur Casas.
Toda a decoração do Hotel tem elementos que valorizam os tempos dourados da boemia carioca com peças de designers de renome dos anos 50, como Sergio Rodrigues, até designers contemporâneos, como o próprio Arthur Casas. Algumas de suas peças estão pelo hotel, como as banquetas metálicas tecidas com palha de banana, as mesas feitas com fragmentos de mármore e as Cadeiras Lampião, constituintes da decoração do restaurante principal. O arquiteto Arthur Casas ainda desenhou os painéis tridimensionais em madeira, presentes nos elevadores.

Figura 43: Cadeira Lampião, Hotel Emiliano. Fonte: Studio Arthur Casas.
Quanto à iluminação, Casas tinha como objetivo revelar a arquitetura através de lâmpadas lineares e luz indireta. Nos revestimentos, cores claras prevalecem sobre os materiais brasileiros – como a palha natural, madeira de carvalho branco, mármore branco do Paraná, granitos e pedras.

Figura 44: Iluminação, Corredor, Hotel Emiliano. Fonte: ArchDaily.
O paisagismo aparece o interior através de jardins verticais. Na cobertura, a vegetação foi cuidadosamente selecionada devido à ação do vento e da umidade marítima. No térreo, o verde abundante reproduz a ambiência da Floresta Atlântica e abraça o restaurante, enquanto uma segunda composição é estabelecida na área privada dos hóspedes, com o intuito de remeter a um passeio no Calçadão de Ipanema.

Figura 45: Parede Verde, Cobertura, Hotel Emiliano. Fonte: ArchDaily.
O Hotel Emiliano RJ incorpora de maneira clara a identidade projetual de Arthur Casas, manifestando elementos recorrentes em sua obra, como a transição fluida entre diferentes escalas — do objeto ao edifício — e a constante busca por leveza formal. O projeto enfatiza a experiência do usuário como princípio central, articulando soluções que integram componentes móveis, como painéis e brises, não apenas como recursos funcionais, mas também como elementos plásticos que qualificam a fachada e os ambientes internos. A paleta de cores reforça essa abordagem ao adotar tonalidades neutras e naturais, predominando brancos, beges e nuances terrosas que criam uma atmosfera de conforto e serenidade, ao mesmo tempo em que dialogam com a luminosidade e a paisagem litorânea. Além disso, o hotel apresenta uma interpretação contemporânea de valores modernistas, atualizando-os por meio de estratégias que privilegiam racionalidade, integração visual e elegância construtiva.
Restaurante KAA

Figura 46: Restaurante KAA. Fonte: ArchDaily.
Ficha Técnica
Arquiteto: Arthur Casas
Tipologia de uso: Comercial
Área Construída: 612 m²
Ano: 2008
Análise da Obra
O Restaurante KAA está localizado no bairro Itaim Bibi, na zona sudoeste de São Paulo. Inserido em um lote de 879 m², com a frente voltada para a Rua Juscelino Kubitschek, uma das vias estruturais do bairro. A região caracteriza-se por alta densidade construtiva, predominância de edifícios corporativos e de uso misto, além de intenso fluxo viário e pedonal ao longo do dia.
A fachada do Restaurante apresenta uma linguagem discreta e controlada, marcada por um plano contínuo e opaco que ocupa praticamente toda a testada do lote, funcionando como uma espécie de “barreira urbana”. Esse tratamento minimalista, sem elementos de transparência e grandes aberturas, cria uma barreira visual que não dá nenhuma pista dos 798 m2 que se revelam internamente.

Figura 47: Fachada, Restaurante KAA. Fonte: ArchDaily.
Ao adotar essa postura introvertida, a fachada atua como uma transição entre o ambiente caótico do bairro Itaim Bibi e a atmosfera serena do interior, intensificando a experiência de surpresa e transição espacial quando o visitante cruza o acesso e descobre o amplo salão integrado a um forte caráter paisagístico.

Figura 48: Salão, Restaurante KAA. Fonte: ArchDaily.
Segundo Arthur Casas, a inspiração do projeto surge, assim como a escolha do nome do Restaurante – de origem tupi e significado folha, erva, mato –, da necessidade do paulistano em fugir do caos da cidade, mesmo que seja por poucas horas. O que levou a configuração de um ambiente amplo, de materiais e cores naturais, mobiliário confortável e de design brasileiro.
No centro dessa proposta está a grande estante do bar, um elemento arquitetônico que não apenas organiza o espaço ao dividir o amplo salão em duas áreas distintas, mas também funciona como suporte expositivo. Nela, peças indígenas originais são cuidadosamente dispostas em diálogo com garrafas, copos e livros, compondo uma narrativa visual que conecta tradição, cultura material brasileira e contemporaneidade.

Figura 49: Estante do Bar, Restaurante KAA. Fonte: Studio Arthur Casas.
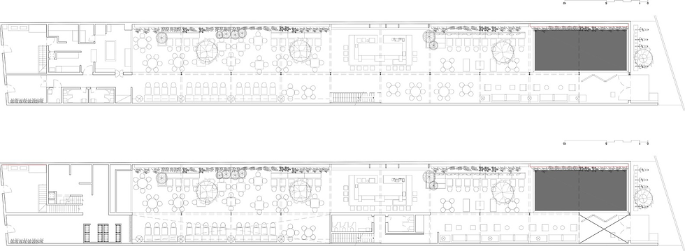
As plantas do Restaurante KAA revelam a implantação em um lote estreito e bastante longitudinal, condições que orientam a distribuição sequencial dos ambientes. A organização espacial estabelece uma setorização clara entre a área de apoio — localizada na porção posterior do lote e composta por sanitários, espaços administrativos e circulação vertical — e o setor público, que se desenvolve ao longo da parte central e frontal.
Os grandes vazios marcados em cinza nas plantas indicam áreas de destaque, possivelmente com pé-direito ampliado, reforçando a intenção de criar momentos de expansão espacial dentro do percurso. A alternância entre salões, jardins internos e externos organiza a experiência do usuário de forma progressiva, revelando os ambientes gradualmente e consolidando um núcleo central como ponto focal do restaurante.

Figura 50: Plantas, Restaurante KAA. Fonte: ArchDaily.
A circulação principal segue o eixo longitudinal entre os pavimentos, permitindo fluidez entre os salões e garantindo eficiência operacional sem cruzamento de fluxos entre equipe e clientes. As duas seções do Restaurante mostram um volume horizontal contínuo, com cobertura plana e vãos amplos, que na leitura espacial destaca a ideia de continuidade e transparência, reforçada pelo uso extensivo de planos de vidro e estrutura esbelta.

Figura 51: Seções, Restaurante KAA. Fonte: ArchDaily.
Para a estrutura, Casas optou por aço corten aparente que se vale da composição pré-existente. Do mesmo modo, um perfil metálico de corten criou o mezanino disposto na parte direita do lote. A cobertura em toldo retrátil foi disposta na parte esquerda do lote e o mezanino ganhou fechamento lateral de vidro, visando dar ao ambiente mais luz natural e proporcionar a sensação de um terraço.
No que diz respeito ao paisagismo, elemento central na concepção do Restaurante Kaá, o projeto incorpora um painel verde de 7,50 metros de altura, que percorre todo o comprimento do salão principal, sendo interrompido apenas pela marcenaria do bar. Executado pela paisagista Gica Mesiara, esse jardim vertical reúne espécies nativas da Mata Atlântica, selecionadas para garantir diversidade cromática, textural e sazonal.

Figura 52: Painel Verde, Restaurante KAA. Fonte: Studio Arthur Casas.
Ao longo da base do painel, um espelho d’água contínuo reforça a ambiência bioclimática do espaço, evocando os igarapés e contribuindo para o microclima interno por meio da umidificação natural e da suavização acústica. O conjunto atua como um eixo paisagístico estruturador, transformando o salão em um ambiente imersivo e reforçando a proposta arquitetônica de criar um refúgio urbano integrado à natureza.

Figura 53: Espelho D’água, Restaurante KAA. Fonte: Studio Arthur Casas.
Concluindo, o Restaurante Kaá sintetiza com precisão o estilo de Arthur Casas ao articular interior e exterior por meio de um ambiente imerso em natureza, marcado pelo jardim vertical e pelo espelho d’água que dissolvem os limites físicos do edifício. A fachada discreta e o amplo salão que se revela gradualmente refletem sua busca por leveza formal e pela criação de narrativas espaciais. Elementos integrados, como a estante do bar que organiza o espaço, demonstram a atenção do arquiteto ao design como extensão da arquitetura. Materiais naturais, iluminação cuidadosa e mobiliário contemporâneo reforçam a centralidade da experiência do usuário, enquanto a clareza estrutural e a integração paisagística evidenciam sua interpretação contemporânea dos princípios modernistas.
Referências
ARCHDAILY BRASIL. Emiliano RJ / Studio Arthur Casas. Disponível em: https://www.archdaily.com.br/br/889379/emiliano-rj-studio-arthur-casas/. Acesso em: 11 dez. 2025.
ARCHDAILY BRASIL. KAA / Studio Arthur Casas. Disponível em: https://www.archdaily.com.br/br/795672/kaa-studio-arthur-casas. Acesso em: 10 dez. 2025.
ARTHUR CASAS. Entrevista Arthur Casas. Disponível em: https://www.arthurcasas.com/app/uploads/2022/08/entrevista-arthurcasas-1.pdf. Acesso em: 11 dez. 2025.
ARTHUR CASAS. Studio Arthur Casas. Disponível em: https://www.arthurcasas.com/pt/. Acesso em: 10 dez. 2025.
EMILIANO. Hotel Emiliano Rio de Janeiro. Disponível em: https://emiliano.com.br/?hotel=rj. Acesso em: 10 dez. 2025.
OSLO DESIGN. Arthur Casas. Disponível em: https://www.oslodesign.com.br/arthur-casas?srsltid=AfmBOopsI-mvxFQYrKHww7dL2Ty9F84r9xVC87QyZv1dWlA9IXGyq_sr&page=1. Acesso em: 10 dez. 2025.
REVISTA PROJETO. Perfil: Studio Arthur Casas. Disponível em: https://revistaprojeto.com.br/acervo/perfil-studioarthur-casas/. Acesso em: 11 dez. 2025.
VIVA DECORA. Arthur Casas: biografia e principais projetos do arquiteto. Disponível em: https://arquitetura.vivadecora.com.br/arthur-casas/. Acesso em: 11 dez. 2025.
Autor
Lara Cobucci Fernandes Costa.




Comentários