JOSÉ ZANINE CALDAS
- ACR 113
- 11 de dez. de 2025
- 16 min de leitura

biografia
Considerado um “Mestre da Madeira”, José Zanine Caldas foi um arquiteto e designer autodidata internacionalmente conhecido. Sem nunca ter frequentado uma faculdade de arquitetura, ele foi um precursor no uso de madeira e da integração de elementos naturais nos elementos arquitetônicos. Nascido em em Belmonte, na Bahia, no dia 25 de abril de 1919, e desde pequeno demonstrou uma grande paixão por trabalhos manuais e marcenaria. Com apenas 13 anos, começou a montar presépios utilizando caixas de seringa de papelão de seu pai médico.
Na década de 1940, sem formação, Zanine se muda para o Rio de Janeiro, que é onde começa a sua trajetória profissional. Nessa época, Zanine trabalhava no escritório de Severo Villares e como membro do Serviço do Patrimônio Histórico e Artístico Nacional (Sphan). Em 1941, ainda no Rio de Janeiro, o arquiteto abriu um ateliê de maquetes, chamado “Maquete Studio” , funcionando na cidade até em 1948, quando nessa época, foi transferido para São Paulo, em que atuou de 1949 até 1955. Com o trabalho do, até então, maquetista, a evolução construtiva das maquetes foi notória, com uma versatilidade no uso de diferentes materiais em sua composição, dando alternativas construtivas e transformando o valor da representação para os projetistas. Conquistando credibilidade com diversos arquitetos, saiu dessa oficina protótipos de projetos assinados por nomes como Lúcio Costa e Oscar Niemeyer.

Entretanto, foi em dezembro de 1948 que José Zanine Caldas tomou a sua primeira grande iniciativa industrial, ao abrir uma fábrica chamada "Zanine, Pontes e Cia. Ltda”, mais conhecida como “Móveis Artísticos Z”, uma sociedade entre Zanine, Sebastião Henrique da Cunha Pontes e Paulo Mello, sendo uma das pioneiras na produção em série dos móveis modernos. Por utilizar compensado de madeira, ele conseguiu realizar os projetos mais fielmente às suas ideias, evitando o desperdício de material. Com cores vivas e pequenas dimensões, os materiais do arquiteto foram rapidamente adaptados aos ambientes populares da época, trazendo um conceito modernista. Localizada em São José dos Campos, interior de São Paulo, a fábrica chegou a ter mais de 300 funcionários.

Já de 1950 a 1952 ele trabalhou como assistente do arquiteto Alcides da Rocha Miranda, na Faculdade de Arquitetura e Urbanismo da Universidade de São Paulo (FAUUSP). Além disso, em 1953, Zanine se desliga da empresa Móveis Artísticos Z e, ainda em São Paulo, começa a trabalhar com projetos paisagísticos até 1958. Em 1958 ele se mudou para Brasília, que foi onde ele construiu sua primeira casa, e trabalhou coordenando projetos construtivos até 1964.
Tendo sido indicado por Rocha Miranda, em 1962, José Zanine Caldas ingressou na Universidade de Brasília (UnB) na qual começou a dar aulas de maquete até 1964, que foi quando ele perdeu o cargo por causa da ditadura militar. Em 1964, Zanine era filiado do Partido Comunista, mesmo que ele não exercesse mais o cargo no partido, ele ainda era associado. Nesse ano recebeu abrigo no consulado da Iugoslávia no Brasil, porém a sua esposa estava grávida e não queria sair do país. Então, ele fugiu do consulado e ainda em 64 se mudou para o Rio de Janeiro, mais especificamente em Ipanema, e se mudou para Joatinga aproximadamente em 1967. Ao voltar ao Rio de Janeiro, ele constrói a Casa Cuca, dá início também a uma série de construções feitas na região de Joatinga.

A partir dessa época, Zanine Caldas fez parte de diversos projetos arquitetônicos, tendo a madeira como principal material, se relacionando também com questões relativas à preservação ambiental. Entre os anos de 1968 e 1969, Zanine viajou pela Ásia e pela África, viagens extremamente importantes para o seu trabalho dali em diante, adquirindo valores e principalmente na valorização da arte do “saber fazer”, aplicando diferentes potenciais das culturas em seus projetos.
Foi também no ano de 1968 que ele se mudou para Nova Viçosa, no estado da Bahia, e abriu um ateliê-oficina para antigos canoeiros, com uma reinterpretação dos artesanatos locais, que funcionou até 1980.
Ao ver aquelas madeiras imensas serem queimadas e jogadas fora, eu pego a madeira bruta e a transformo em móvel, nas dimensões naturais (Zanine Caldas)
É nesse período da década de 70 que ele participou de projetos de reserva ambiental e os móveis são construídos de madeira bruta e com um formato retorcido, o que inspira os seus desenhos. Em 1970 ele constrói a Casa dos Triângulos e a Casa da Beira do Rio, adotando em ambas um sistema construtivo artesanal baseando-se nas madeiras típicas da região. Esse sistema construtivo consistia em montar um gabarito no cão das peças em tamanho real que seriam construídas, em que definiam-se e emparelharam-se as peças que erguiam a estrutura e depois elas eram mandadas desmontadas para serem numeradas e enviadas para o local da obra. Em 1971 ele projetou um ateliê para o artista plástico e ativista ambiental Frans Krajcberg. Nessa década, foram notórias as projeções do arquiteto, com um destaque na Casa Bettiol, de Brasília, construída em 1974.
Ademais, em 1980 A Casa de Hélio Olga, também chamada de Casa Morumbi, foi construída em São Paulo, e foi montada por desenhos e madeiras fornecidas por Caldas e a estrutura foi montada pelo próprio Hélio. Nesta casa, assim como em outras projetadas por ele na década de 70, a estrutura de madeira destacada das paredes de vedação combinada com o telhado de barro dão à edificação uma sensação de rusticidade e aconchego.
Em 1983, Zanine funda o Centro de Desenvolvimento das Aplicações das Madeiras do Brasil (DAM), um núcleo de pesquisa sobre o uso de madeira na construção civil, tendo como finalidade evitar a progressiva destruição das florestas brasileiras. E também propõe a criação da Escola do Fazer, que consiste basicamente em um centro de ensino sobre uso de madeira da região nas construções para a população de baixa renda e, dessa forma, o arquiteto auxilia na inserção das pessoas marginalizadas com a arquitetura e aproxima suas obras cada vez mais das linguagens nativas. Sendo assim, mesmo que ele ainda construísse casas para a elite, é notória a sua dedicação com o projeto DAM.

Além disso, é importante destacar o uso exorbitado de madeira roliça, sendo um dos principais materiais utilizados por ele. Esse método vai além dos projetos residenciais, sendo visível, por exemplo, na Capela da Fazenda Barra das Princesas Agropecuária S. A., em Araguaia, Mato Grosso.
Em 1989, após o fim da ditadura militar, Zanine volta para o seu posto na UnB, porém não chega a dar aulas. Internacionalmente conhecido, ele viaja pela Europa, onde projeta casas em Portugal, todavia somente uma residência em Sintra foi realmente executada. Ele também dá aulas na Escola de Arquitetura da cidade de Grenoble, na França Em 1990, Zanine foi convidado a participar do festival d’Automne (Festival de Outono) em Paris com uma exposição no Museu de Arte Decorativa do Louvre chamada “Zanine, L’architecte et la forêt” (Zanine, o arquiteto e a floresta) e em 1991 recebeu a medalha de prata da Academia de Arquitetura de Paris.
Entretanto, foi somente em 1991 que no Brasil José Zanine Caldas recebeu o título de arquiteto honorário dado pelo Instituto de Arquitetos do Brasil (IAB) no 13º Congresso Brasileiro de Arquitetura em São Paulo.
O arquiteto faleceu em 2001, aos 82 anos devido a um infarto, deixando consigo um importante legado na arquitetura brasileira e mundial. Ele se casou seis vezes e teve seis filhos, entre eles, Euclides e José se tornaram arquitetos, além de Zanine, que se destacou como designer, seguindo a trajetória do pai.
Mesmo sem nunca ter frequentado uma faculdade de arquitetura, José Zanine Caldas foi precursor de um estilo arquitetônico associado aos elementos naturais do Brasil, além de trazer destaque sobre as construções populares e principalmente o uso de materiais naturais como forma de construção, respeitando a cultura local.
Projetos:
Principais Móveis:
Poltrona Zeca

Banquinho Zanine

Figura 06: Banquinho Zanine. Fonte: Dpot. Poltrona Cuca

Figura 07: Poltrona Cuca. Fonte: Dpot. Banco Belmonte

Figura 08: Banco Belmonte. Fonte: Dpot. Revisteiro Nini

Figura 09: Revisteiro Nini. Fonte: Dpot. Zanine H

Figura 10: Zanine H. Fonte: Dpot. Zanine I

Figura 11: Zanine I. Fonte: Dpot Namoradeira

Figura 12: Namoradeira. Fonte: CasaAbril.
Demais Móveis
Cadeira Tesoura
Cadeira Z
Cadeira Três Pés
Cadeira de Compensado
Banco de Compensado
Mesa de Jantar de Compensado
Poltrona Serfa
Puff Serfa
Cadeira Rústica/Esculpida
Poltrona Esculpida
Banco Esculpido em Pequi Maciço
Banco Escultura/Tronco
Mesa de Centro Esculpida/Tronco
Bar Zanine X
Banqueta Cuca
Banqueta X
Banqueta Belmonte
Mesa Lateral Belmonte
Cadeira Zanine N
Mesa de Jantar Roda
Mesa de Jantar Viga
Cômoda/Armário de Compensado
Prateleira/Estante Modulada
Poltrona Zeca
Principais Projetos
1948 - Marcenaria Móveis Artísticos Z, São José dos Campos, SP.
1950 - Sede da Fazenda São José, Boa Esperança, MG.
1953 - Residência Geraldo Ribeiro, São Paulo, SP.
1964 - Residência Zanine Caldas, Rio de Janeiro, RJ.
1968 - Residência do Engenheiro José Liguori, Rio de Janeiro, RJ.
1970 - Casa em Jacarepaguá, Rio de Janeiro, RJ.
1970 - Casa Pampulha, Belo Horizonte, MG.
1970 - Casa dos Triângulos, Nova Viçosa, BA.
1970 - Casa da Beira do Rio, Nova Viçosa, BA.
1971 - Ateliê Krajcberg, Nova Viçosa, BA.
1972 - Maquete para a Sede da Sociedade dos Amigos da Praia do Morro, Rio de Janeiro, RJ.
1974 - Casa Bettiol, Brasília, DF.
1974 - Casa Cuca, Rio de Janeiro, RJ.
1975 - Casa do Sol, Mangaratiba, RJ.
1977 - Residência Caldas, São Paulo, SP.
1980 - Casa Morumbi, São Paulo, SP.
1980 - Casa Hélio Olga, São Paulo, SP.
1980 - Pavilhão de Madeira, Rio de Janeiro, RJ.
1980 - Sede da Fazenda Boa Vista, Porto Feliz, SP.
1982 - Projeto de Habitação Popular em Madeira, Nova Viçosa, BA.
1984 - Centro de Convenções do Hotel Meridien, São Paulo, SP.
1986 - Casa Z, Rio de Janeiro, RJ.
1988 - Residência Zélia Caldas, São Paulo, SP.
Casa bettiol
Ficha Técnica
Arquiteto: José Zanine Caldas
Cliente: Luiz Carlos Bettiol
Tipologia de uso: Residencial
Ano do projeto: 1974
Período de Construção: 1974 a 1978
Área Construída: 1300 m²
Endereço: Setor de Mansões Isoladas Norte, Asa Norte, Brasília - DF, Brasil
Análise da Obra
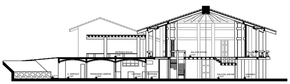
A Casa Bettiol está localizada em Brasília, às margens do Lago Paranoá, em um terreno de 22.000 metros quadrados. Projetada para o casal Betty e Luiz Carlos Bettiol, que desejavam se mudar para uma casa ampla e de caráter pavilhonar, em que o dormitório principal tivesse maior privacidade em relação aos espaços sociais e aos quartos dos filhos. Atendendo ao pedido dos proprietários, o arquiteto projetou a casa a partir de blocos independentes, conectados por varandas e passarelas cobertas.
A implantação no terreno busca valorizar a vista para o Lago Paranoá, aproveitando de forma eficiente o declive natural. Assim, a residência pode ser acessada tanto pelo pavimento inferior quanto pelo superior, o que contribui para uma relação fluida entre interior e exterior. A casa possui diversas varandas, telhados de grandes beirais, pé-direito elevado e modulação bem definida. A Figura 13 apresenta a implantação.

A estrutura consiste no uso de pilares de madeira maciça de seção circular (Ø40cm) e retangulares (40x40cm), além de vãos entre 5 e 6m. Os enquadramentos da paisagem proporcionados pela estrutura são intencionais.

A volumetria é composta por três construções espacialmente independentes: duas com quatro lados e a principal com oito lados. Os volumes ortogonais apresentam diferentes composições entre superfícies opacas e transparentes, enquanto o edifício central apresenta aberturas posicionadas nas arestas, fechadas por esquadrias de vidro. Na parte exterior, as paredes são recuadas com o objetivo de criar varandas para ter uma transição entre o ambiente externo e interno. Além disso, as varandas também estão presentes nos blocos quadrados, para possibilitar a conexão entre as edificações.




O acesso principal à residência se dá pela fachada posterior, onde uma rampa conduz o veículo diretamente à entrada do segundo pavimento. Além disso, o projeto permite que os veículos atravessem o primeiro pavimento, circulando entre as áreas sociais e de serviço. Essa solução facilita o transporte e o armazenamento de compras e materiais, ao mesmo tempo em que reforça a separação funcional entre esses dois ambientes.


A disposição funcional da residência é estruturada da seguinte forma: o volume à direita abriga os quartos, a sala de estudo e ateliê, além da área de serviço. O volume à esquerda acomoda os ambientes mais íntimos, incluindo os demais quartos, a suíte do casal, o escritório e a rouparia. Já o volume central concentra as áreas sociais, como cozinha, sala de estar e sala de jantar, posicionadas na porção frontal, enquanto as dependências de serviço ocupam a parte posterior.


Entrando pelo pavimento térreo, a primeira sala que temos é a sala de jantar, com paredes de vidro para o jardim e uma parte com o pé direito rebaixado para a sala de música no andar superior. Atrás dela, ainda na parte frontal, estão, da direita para a esquerda em relação à fachada frontal, uma sala de estudo, um WC, uma cozinha com uma área descoberta em cada lado, proporcionando uma iluminação zenital ao ambiente, uma rouparia, outro WC, uma sauna e um quarto de hóspedes, com lavabo e banheiro. Depois disso, há um corredor para a passagem de carros que atravessa toda a estrutura. Na parte posterior do edifício, estão dois depósitos, cinco quartos, sendo um uma suíte, um quarto de costura e uma área de serviços.


No pavimento superior, temos como ambiente de circulação um grande deck coberto que circunda a sala de estar. Nela, há uma sala de música rebaixada e uma escada que conecta com a sala de jantar no andar inferior. Na parte posterior, está uma ampla entrada social com acesso pela rampa exterior. Além disso, esse andar conta com um ateliê com dois banheiros, WCs e lavabos, um escritório e um quarto de casal com closet, ambos com banheiro, WC e lavabo. Além disso, há um mezanino acessível por uma escada no ateliê.


O paisagismo manteve as árvores de maior porte presentes no terreno, além de adotar um grande gramado na frente da casa, com uma lagoa artificial e um espelho d’água.


Em termos de materialidade, as partes de destaque da estrutura são executadas em madeira maciça, material que também se repete nas esquadrias, forros, móveis e detalhes da residência.
Os ambientes possuem móveis assinados, pinturas e esculturas nacionais colecionadas pelo casal Bettiol, que foram compiladas em um livro com o título “A Arte Brasileira na Coleção Bettiol”.
Casa Morumbi
Ficha Técnica
Arquiteto: José Zanine Caldas
Cliente: Engenheiro Hélio Olga
Tipologia de uso: Residência unifamiliar
Ano do Projeto: 1980
Período de Construção: 1980 a 1982
Área construída: aproximadamente 350 m²
Endereço: Bairro do Morumbi, São Paulo – SP, Brasil
Análise da Obra
A residência, projetada em 1980 para o engenheiro Hélio Olga, está localizada no bairro do Morumbi, em São Paulo, área caracterizada por lotes amplos, vegetação abundante e forte declividade. A Figura 18 apresenta uma visão superior da localização do lote em mapa.

O terreno apresenta inclinação acentuada, condição que orientou diretamente o projeto. Para minimizar intervenções no solo, parte da edificação foi elevada sobre pilares de madeira, além da utilização de platôs em níveis, permitindo que o volume principal acompanhasse o relevo existente sem necessidade de grandes movimentos de terra.
A casa foi previamente produzida em Nova Viçosa (BA), na oficina de Zanine, segundo o sistema “pré-elaborado”, um método no qual as estruturas eram fabricadas sobre um piso quadriculado e, posteriormente, desmontadas e remontadas no terreno definitivo, nesse caso, no bairro Morumbi, em São Paulo. As Figuras 30 e 31 apresentam imagens exteriores da construção. A Figura 32 mostra uma visão em planta da fachada do projeto.



A implantação gera, na porção frontal do lote, uma área coberta resultante da elevação do volume principal. Esse espaço funciona como zona de transição e acesso, sendo utilizado como garagem e área abrigada antes da entrada principal, articulando o ambiente externo com o interior da residência.
Ao observar o corte apresentado na Figura 33, evidencia-se que a estrutura acompanha o desnível do lote com a construção de níveis em platôs. Dessa forma, há um escalonamento causado pela topografia e essa hierarquia volumétrica permite ventilação, entrada de luz zenital e leitura clara da organização vertical da casa. Além disso, no corte é possível observar a estrutura da cobertura e a presença do mezanino que surge como um corpo mais compacto, marcado pela cobertura em duas águas e pelos beirais no formato de galbo de contrafeito.

No desenvolvimento das plantas baixas, Zanine iniciava com rascunhos, onde definia a organização espacial e estrutural do conjunto, e a partir dela evoluía para os desenhos das fachadas e vistas.
O projeto se distribui em quatro níveis: o térreo, aproveitando o desnível do terreno, abriga depósitos e áreas de serviço; o primeiro pavimento concentra a área social, além da varanda frontal e um jardim posterior; o segundo pavimento reúne os dormitórios e um corredor-escritório voltado para a fachada principal; e por último o terceiro pavimento com um quarto. O projeto das plantas pode ser visto nas Figuras 34, 36, 40 e 42.

A planta térrea corresponde ao nível mais baixo da residência e está parcialmente encaixada no terreno inclinado, acompanhando o formato irregular do lote. Nesse pavimento concentram-se áreas de serviço e depósitos, configurando um setor predominantemente funcional. O volume construído adapta-se ao perímetro do terreno, resultando em um contorno que responde aos limites laterais e às faixas ajardinadas que envolvem a edificação. A circulação vertical entre esse nível e o pavimento imediatamente superior é realizada por uma escada externa que dá acesso à varanda de madeira, definindo um ponto de transição entre os níveis. Esse acesso pode ser visto na Figura 35.


O primeiro pavimento corresponde ao nível social da residência e concentra os ambientes destinados à convivência. Ao adentrar a região, o percurso se divide em duas direções principais: para a sala e a varanda frontal, ou para o setor posterior, onde se encontram a cozinha, os sanitários e a área de serviço. Os espaços de estar e jantar ocupam o maior volume do pavimento, configurando uma área integrada voltada para a fachada principal. Já a cozinha, os sanitários e a área de serviço se organizam em um volume mais compacto, posicionado na porção posterior da planta. Essa área se estende para uma pequena varanda que, por sua vez, conecta-se à dependência de empregada e permite acesso em nível ao quintal.
A circulação se desenvolve ao longo do eixo que acompanha a fachada principal, enquanto a continuidade para o próximo pavimento é feita por uma escada interna de madeira, instalada próxima ao canto do pavimento e destacada pela sua estrutura. Na Figura 37 é possível ver uma imagem da área social com destaque a escada em formato helicoidal. Tal componente se torna destaque em diversos projetos de Zanine.

Em complemento aos projetos, as Figuras 38 e 39 mostram algumas partes do interior da edificação.



O segundo pavimento é destinado aos ambientes íntimos da residência e apresenta uma organização mais compartimentada em comparação ao pavimento social. A circulação vertical proveniente do primeiro pavimento chega em um corredor central, que funciona como eixo distribuidor dos dormitórios e também como área de escritório. Esse espaço longitudinal acompanha a fachada principal, onde grandes aberturas garantem iluminação natural abundante vinda do exterior.
A partir desse corredor distribuem-se três dormitórios, sendo um deles uma suíte. Entre os quartos, localiza-se um sanitário de uso comum. Ainda nesse pavimento, uma segunda escada no estilo Santos Dumont posicionada no corredor permite o acesso ao mezanino, correspondente ao último nível da residência.
A relação com a área externa também se destaca: o recuo frontal abriga um terraço coberto que se projeta sobre o volume do primeiro pavimento, funcionando como extensão visual dos dormitórios e contribuindo para o sombreamento da fachada inferior. A Figura 41 apresenta uma imagem do interior do segundo pavimento, onde é possível observar a escada de acesso ao mezanino.

Na Figura 42 é apresentado o último pavimento da casa, porém destaca-se que essa área foi construída posteriormente, quando Hélio Olga vendeu a casa para um casal que precisava de um quarto a mais para a família.

A casa é modulada com pilares de madeira de 25 x 25 cm posicionados a cada 3 metros, o que garante ordem construtiva e precisão nas peças. Para o restante da estrutura, foram utilizadas vigas e barrotes fixados por cantoneiras metálicas e amplos painéis de vidro, que garantem luminosidade e integração com o entorno. Ademais, as portas e escadas foram talhadas artesanalmente pelos carpinteiros de Nova Viçosa.
Contudo, Zanine rompe a rigidez dessa modulação quando necessário, como na sala de estar, onde amplia o espaço ao suprimir pilares.
A Residência no Morumbi reflete a habilidade de José Zanine Caldas em unir técnica, sensibilidade e respeito à natureza. A combinação entre a estrutura em madeira aparente, o aproveitamento do terreno e a integração entre interior e exterior revela uma arquitetura coerente com os princípios do autor.
Em 1991, a casa foi vendida pelo engenheiro Hélio Olga e está aos cuidados do casal Joaquim e Fernanda, que se mudaram com seus três filhos para o local.
Referências
CARVALHO, Amanda Beatriz Palma de. José Zanine Caldas: arquitetura, madeira e expressão artesanal. 2018. Dissertação (Mestrado em Arquitetura e Urbanismo) – Faculdade de Arquitetura e Urbanismo, Universidade de São Paulo, São Paulo, 2018.
CARVALHO, Amanda Beatriz Palma de. José Zanine Caldas: a materialidade da forma. 2018. Trabalho Final de Graduação (Arquitetura e Urbanismo) — Faculdade de Arquitetura e Urbanismo, Universidade de São Paulo, São Paulo, 2018.
NETTO, Rafaela. Zanine Caldas: Casa Morumbi. Rafaela Netto,S.d. .Disponível em: https://www.rafaelanetto.com/zaninecaldas/casamorumbi. Acesso em: 1 nov. 2025.
LORA RONCO Galeria. José Zanine Caldas: paisagista, escultor, maquetista e designer. São Paulo: Lora Ronco Galeria, [s.d.]. Disponível em: https://www.loraronco.com.br/jose-zanine-caldas. Acesso em: 02 nov. 2025.
DPOT – Mobiliário Brasileiro. Zanine Caldas. [s.l.]: DPOT, [s.d.]. Disponível em: https://dpot.com.br/zanine-caldas.html. Acesso em: 02 nov. 2025.
COMUNIDADE VITRUVIANA. Biografia: vida e obra de Zanine Caldas. [s.l.]: Comunidade Vitruviana, [s.d.]. Disponível em: https://comunidadevitruviana.com/biografia-vida-e-obra-de-zanine-caldas/. Acesso em: 02 nov. 2025.
CORREIO BRAZILIENSE. Lembrando Zanine. Disponível em https://www.correiobraziliense.com.br/app/noticia/revista/2016/05/08/interna_revista_correio,530581/lembrando-zanine.shtml
CHAIM, Giselle Marie Cormier. O mestre, a madeira e a habitação: residências de Zanine Caldas em Brasília (1963–1985). 2017. Dissertação (Mestrado em Arquitetura e Urbanismo) — Universidade de Brasília, Brasília, 2017.
MELO, Alexandre Penedo Barbosa. Móveis artísticos Z: o moderno autodidata e seus recortes sinuosos. 2019. Dissertação (Mestrado) — Universidade de São Paulo. Disponível em: https://teses.usp.br/teses/disponiveis/18/18131/tde-27092019-091517/publico/Melo_Alexandre_Penedo_Barbosa_DMestrado.pdf. Acesso em: 05 dez. 2025.
CASA VOGUE. “Zanine Caldas: principais obras e trajetória do arquiteto e designer capixaba”. 2019. Disponível em: https://casavogue.globo.com/Design/noticia/2019/04/zanine-caldas-principais-obras-e-trajetoria-do-arquiteto-e-designer-capixaba.html. Acesso em: 05 dez. 2025.
ITAÚ CULTURAL. “Zanine Caldas”. Enciclopédia Itaú Cultural. Disponível em: https://enciclopedia.itaucultural.org.br/pessoas/7846-zanine-caldas. Acesso em: 05 dez. 2025.
INSTITUTO ZANINE. “Zanine”. Disponível em: https://institutozanine.com/zanine/. Acesso em: 05 dez. 2025.
SIDE GALLERY. José Zanine Caldas – Chaise Lounge Beige, 1949. Disponível em: https://side-gallery.com/jose-zanine-caldas-chaise-lounge-beige-1949/. Acesso em: 05 dez. 2025.
INSTITUTO MOREIRA SALLES (IMS). Flieg e a Móveis Artísticos Z — por Alexandre Penedo. Disponível em: https://ims.com.br/por-dentro-acervo/flieg-e-a-moveis-artisticos-z-por-alexandre-penedo/. Acesso em: 05 dez. 2025.
ARCHTRENDS PORTOBELLO. Mestre Zanine Caldas. Disponível em: https://blog.archtrends.com/mestre-zanine-caldas/ . Acesso em: 05 dez. 2025.
AUGUSTA LOJA. Zanine Caldas. Disponível em: https://www.augustaloja.com/pagina/zanine-caldas/ . Acesso em: 05 dez. 2025.
Autores:
Beatriz Dias Bento, Beatriz Martins Costa dos Santos, Isabela Kanegae Penha, Leonardo Alves de Oliveira, Maria Fernanda Machado Tenório Carvalho Matos.




Comentários